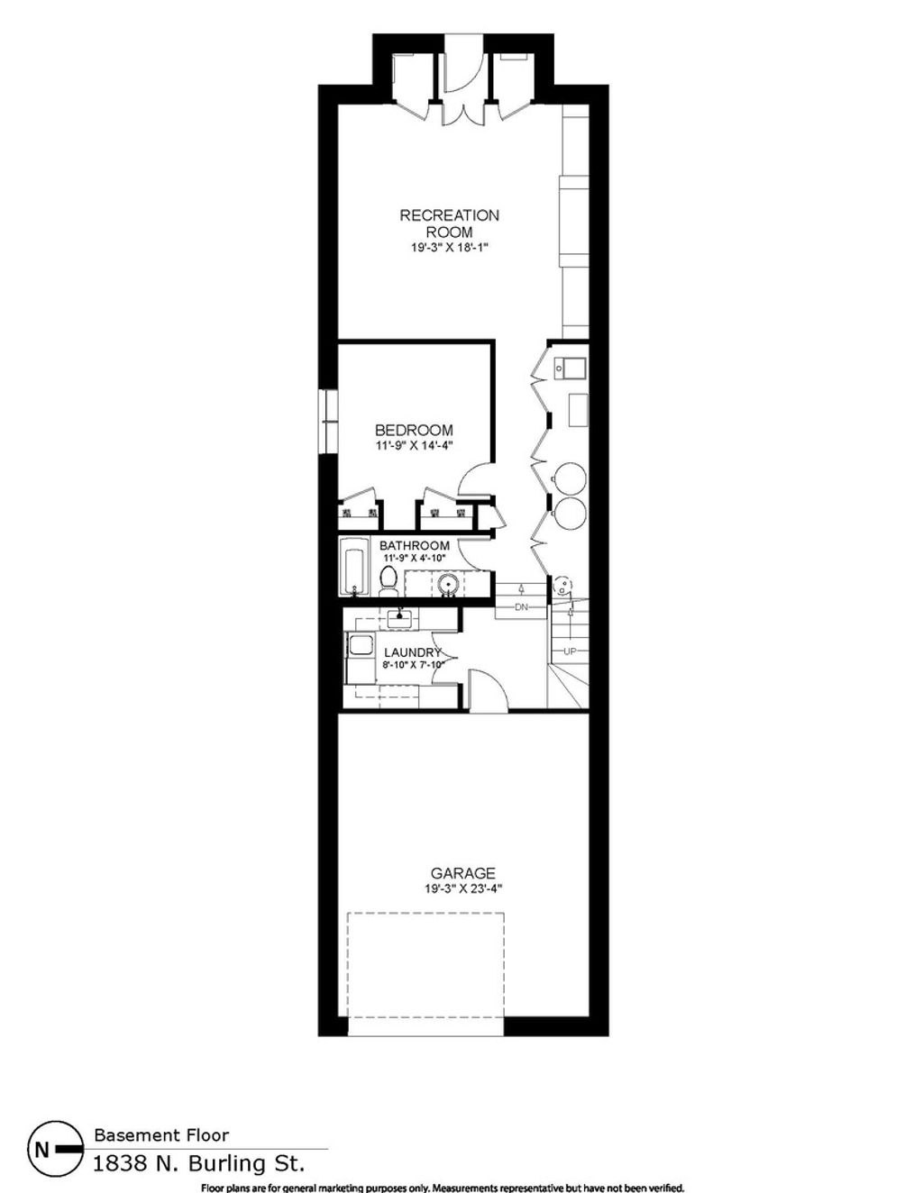
Classic limestone and brick single-family home with some of the most spectacular outdoor space spread over two and a half lots on coveted Burling Street. This outdoor footprint includes a swimming pool, outdoor kitchen, temperature controlled four-season glass atrium with accordion windows, sport court, and a gated parking pad for guests. The main level features high ceilings across a large living room with hardwood floors and a stone fireplace, a formal dining room with modern millwork and glass French doors that open to the deck, a grand staircase, a powder room, a chef's kitchen, a built-in breakfast table, and a family room with a second fireplace and a coffered ceiling. The family room connects via sliding doors to a four-season sunroom accessing the best-in-class outdoor space. Back inside, the second level features two secondary bedrooms, a laundry room, and a fabulous primary suite with a third fireplace, two custom walk-in closets, and a spa bath with a dual vanity, soaking tub, and steam shower. The top floor is dedicated to a large entertainment space, a game room with a wet bar, a guest bedroom or office, a full bath, and two nice roof decks. This home's lower level features a large recreation space, a guest bedroom, a full bath, a 2nd laundry room, and access to the home's attached garage. Additional callouts include heated sidewalks and front steps, amazing natural light throughout, arched transitions and doorways, designer light fixtures, abundance of storage, composite decking, irrigation, and professional landscaping. There is private neighborhood security with multiple cars working each night. Located within a short walk to the best dining and shopping in Lincoln Park, 1838 N Burling is elevated living on Chicago's North Side.
12282585
Residential - Single Family, Traditional
5
4 Full/1 Half
2005
Cook
Brick, Stone
Public Sewer
Loading...
The scores below measure the walkability of the address, access to public transit of the area and the convenience of using a bike on a scale of 1-100
Walk Score
Transit Score
Bike Score
Loading...
Loading...


