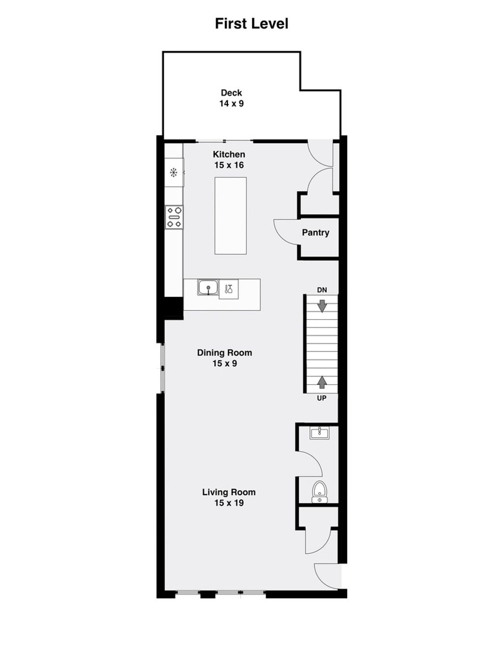
Modern new construction single-family home by top developer on an oversized 30' lot! Sharp facade with brick accents. Extra wide, open concept floor plan. Sun filled main-level features spacious living/dining area with large front windows and hardwood flooring throughout. Adjoining eat-in kitchen with stainless steel Whirlpool appliance package, flat panel cabinetry, quartz counters, island and peninsula with breakfast bar seating, pantry, and patio door to rear deck. Bright and spacious primary bedroom with good storage and private bath featuring a frameless glass shower, vanity with dual sinks, and heated flooring. Two additional bedrooms, full guest bath with tub, and laundry complete the upper-level. Finished lower-level with recreation room featuring wet bar, 4th bedroom, full bath, utilities, and luxury vinyl plank flooring. Nice ceiling heights throughout. Finished closets. On trend design features and tons of natural light! Enclosed backyard with deck and detached two-car garage. Conveniently located near shopping, groceries, restaurants, parks, and more!
12527610
Residential - Single Family, Other
3
3 Full/1 Half
2025
Cook
Public Water
Vinyl Siding, Brick, Fiber Cement
Public Sewer
Loading...
The scores below measure the walkability of the address, access to public transit of the area and the convenience of using a bike on a scale of 1-100
Walk Score
Transit Score
Bike Score
Loading...
Loading...


